Główne parametry projektu
Parametry:
- powierzchnia zabudowy - 101,7 m2
- powierzchnia użytkowa - 134 m2
- powierzchnia podłóg - 147 m2
- wysokość budynku - 8,82 m
- kąt nachylenia połaci - 42 stopnie
- Eu całkowite - 42,06 kWh/m2 rok
Parametry:
- powierzchnia zabudowy - 101,7 m2
- powierzchnia użytkowa - 134 m2
- powierzchnia podłóg - 147 m2
- wysokość budynku - 8,82 m
- kąt nachylenia połaci - 42 stopnie
- Eu całkowite - 42,06 kWh/m2 rok
Wczoraj otrzymaliśmy przesyłkę z biura projektowego z Krakowa z projektem naszego domu :) Ze współpracy z architektem jestem bardzo zadowolony, mam nadzieję że projekt nie zawiera jakiś istotnych błędów. ;) Teraz czekam tylko na warunki z gazowni i będziemy robić zagospodarowanie działki i składać wniosek o PnB.
P.S.1. Eu całkowite wyszło 42,06 kWh/m2 rok.
P.S.2. Robiliście jakieś kopie projektu dla ekip budowlanych, do wycen?
Szukam i zapraszam do kontaktu osoby, które budują lub budowały niedawno dom w powiecie pruszkowskim, grodziskim, piaseczyńskim w celu wymiany doświadczeń, kontaktów do ekip, sprzedawców materiałów itp. :)
Celuję w dom energooszczędny, o zapotrzebowaniu w granicach 50-60 kWh/(m2*rok). W związku z tym zakładam:
1. fundamenty ocieplone 15 cm styropianu
2. podłoga na gruncie ocieplona 20 cm styropianu
3. ściany zewnętrzne ocieplone 20 cm styropianu
4. na dachu lane skosy ocieplone 20 cm styropianu i 15 cm wełny
5. wentylacja mechaniczna z rekuperacją
6. okna 3-szybowe
7. kominek z zamkniętą komorą spalania
8. podłogówka w całym domu zasilana kotłem gazowym kondensacyjnym
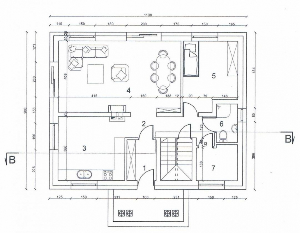
Wybór projektu to była istna droga przez mękę, która trwała przez ponad dwa i pół roku. W zasadzie przeglądać projekty zacząłem zaraz po zakupie działki. Pomimo, że mieliśmy bardzo konkretne założenia (dom z poddaszem, bryła tradycyjna, ok. 150-160 m2 po podłogach, dodatkowy pokój na parterze, zamknięta kuchnia, na poddaszu 3 sypialnie, dwustanowskowy garaż w bryle, nad garażem strych) przejrzałem setki projektów i albo nic nam nie pasowało, a jeśli już jakieś 2, 3 projekty pasowały to nie umieliśmy się zdecydować. W zasadzie poszukiwaniami projektu zajmowałem się tylko ja, jeśli coś przypadło mi do gustu pokazywałem żonie do akceptacji. W międzyczasie, po konsultacjach z architektem lokalnym, zdecydowaliśmy, że rezygnujemy z garażu w bryle więc w zasadzie poszukiwania zaczęły się od nowa. W końcu trafiłem na stronę biura KB Projekt z Krakowa i przypadł nam do gustu projekt Rosławice. Oczywiście wymagał on kilku zmian adaptacyjnych, a im dłużej go rozważaliśmy, tym tych zmian przychodziło nam do głowy więcej. Ostatecznie skorzystaliśmy z opcji wykonania projektu indywidualnego w oparciu o projekt Rosławice przez autora tego projektu. Zmiany jakie wprowadziliśmy na etapie koncepcji:
1. Likwidacja naczółków w dachu oraz nad wykuszem frontowym
2. Likwidacja podcienia i balkonu - powiększenie salonu i sypialni
3. Rozkład ścian działowych skorygowany
4. Likwidacja piwnicy
5. Łazienka na parterze z prysznicem i oknem
6. Pokój dla gości na parterze 11-12 mkw
7. Pomieszczenie 4. na parterze – z miejscem na piec gazowy kondensacyjny i zasobnik, likwidacja komina do spalin, usuwanie spalin z kieca kondensacyjnego rurą przez ścianę
8. Likwidacja kominów wentylacji grawitacyjnej i zaprojektowanie wentylacji mechanicznej (rozprowadzenie kanałów w podłodze poddasza, nie w skosach nad poddaszem, centrala wentylacyjna na parterze w pomieszczeniu 7)
9. Dwa drzwi tarasowe (najlepiej przesuwane, 2m na elewacji lewej, 2m na elewacji tylnej)
10. Powiększenie wiatrołapu
11. Schody żelbetowe, pod schodami spiżarka
12. Wygospodarowanie miejsca na poddaszu na garderobę i pralnie
13. Dodanie okien połaciowych w garderobie i pralni (55 x 78)
14. Zmiana materiału konstrukcyjnego na ceramikę 30 cm + 20 cm ocieplenia styropianem
15. Zaprojektowanie ogrzewania podłogowego –uwzględnienie ocieplenia podłogi na gruncie 20 cm styropianu i 10 cm w podłodze poddasza
16. Zaprojektowanie lanego stropu nad poddaszem, ocieplonego 20 cm styropianu pod krokwie i 15 cm wełny pomiędzy krokwie
17. Ścianka kolankowa po uwzględnieniu ocieplenia, wykończenia podłogi (na gotowo) ok. 1,1 m
18. Strop żelbetowy nad parterem
19. Pełne deskowanie na dachu + papa jako krycie wstępne
20. Wyliczenie więźby dachowej na pokrycie dachu blachodachówką
21. Zostaje tylko komin do kominka
Jak widać zmian w stosunku do oryginału jest dużo :)
A oto efekt:
Parter:

Poddasze:

Elewacje:


W chwili obecnej projekt jest na ukończeniu. "Wrysowaniem" projektu w działkę i wykonaniem projektu zagospodarowania działki zajmie się architekt lokalny, który w naszym imieniu będzie składał wniosek o wydanie PnB.
Komentarze